Barn retreat in Italys UNESCO wine region
Alfiano Natta
proprio mezzo di trasporto
10.0/10
Vedi il prezzoFotografie Barn retreat in Italys UNESCO wine region
Alfiano Natta - 18 Via Crivelli
Barn retreat in Italys UNESCO wine region si trova ad Alfiano Natta e offre piscina esterna stagionale e vista sulla piscina. Questa casa vacanze offre piscina privata, giardino, barbecue, WiFi gratuito e parcheggio privato gratuito.
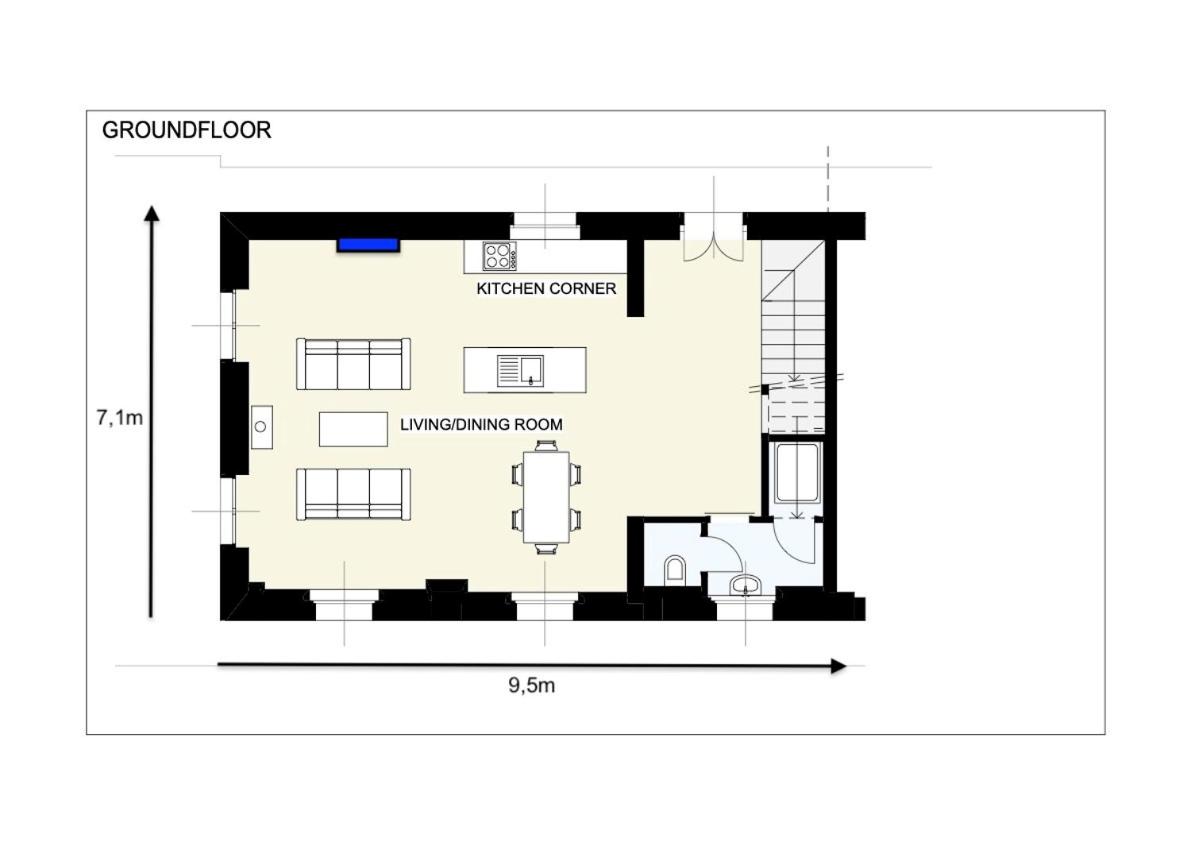
Questa casa vacanze con terrazza e vista sulla montagna presenta 3 camere da letto, un soggiorno, una TV a schermo piatto, una cucina con frigorifero e lavastoviglie e 4 bagni con bidet. Presso questa casa vacanze troverete asciugamani e lenzuola in dotazione.
Aeroporto di Torino si trova a 68 km di distanza.
Check-in dalle 16:00 e termina alle 10:00.
La struttura non è disponibile per feste di addio al nubilatocelibato o simili.
Siete pregati di comunicare in anticipo a lorario in cui prevedete di arrivare. Potrete inserire questa informazione nella sezione Richieste Speciali al momento della prenotazione, o contattare la struttura utilizzando i recapiti riportati nella conferma della prenotazione.
Al check-in gli ospiti devono esibire un documento didentità con foto e una carta di credito. Siete pregati di notare che le Richieste Speciali sono soggette a disponibilità, e potrebbero comportare laddebito di un supplemento.
Piscina: periodo di chiusura mer 1 ott 2025 - ven 1 mag 2026
Struttura gestita da un host privato
Casa con 3 Camere da Letto. The pool with a view and fireplace are the special features of this holiday home. This spacious holiday home is comprised of 1 living room, 3 separate bedrooms and 4 bathrooms with a walk-in shower and bathrobes. Guests will find a stovetop, a refrigerator, a dishwasher and kitchenware in the fully equipped kitchen. The holiday home also has a barbecue. The holiday home offers a washing machine, a private entrance, soundproof walls as well as a terrace with garden views. The unit offers 5 beds.
Ulteriori informazioni sull´offerta it - Alfiano Natta - Barn retreat in Italys UNESCO wine region, sul sito troverete le opinioni dei vacanzieri e le date disponibili il nostro partner.
Numero di licenza: 00600400012
Prenota ora
L´offerta del nostro partner: Booking.com BG.6561953









